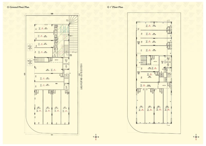
Viral Elegance is a mixed development real estate project developed by Shri Siddhi Vinayak Construction, strategically located at B/h Infinity, Ayodhya Chowk, 150 Feet Ring Road, Rajkot, 360006. This RERA-registered property (Registration No: PR/GJ/RAJKOT/RAJKOT/Rajkot Municipal Corporation/MAA14509/131224/300427). New Commercial And Residential
The project is professionally designed by Dhwani Divyesh Badani and engineered by Ashwinkumar Manilal Lodhiya, ensuring quality construction and adherence to all regulatory standards. For more information about this property, interested buyers can contact Shri Siddhi Vinayak Construction directly at 7434849001.







