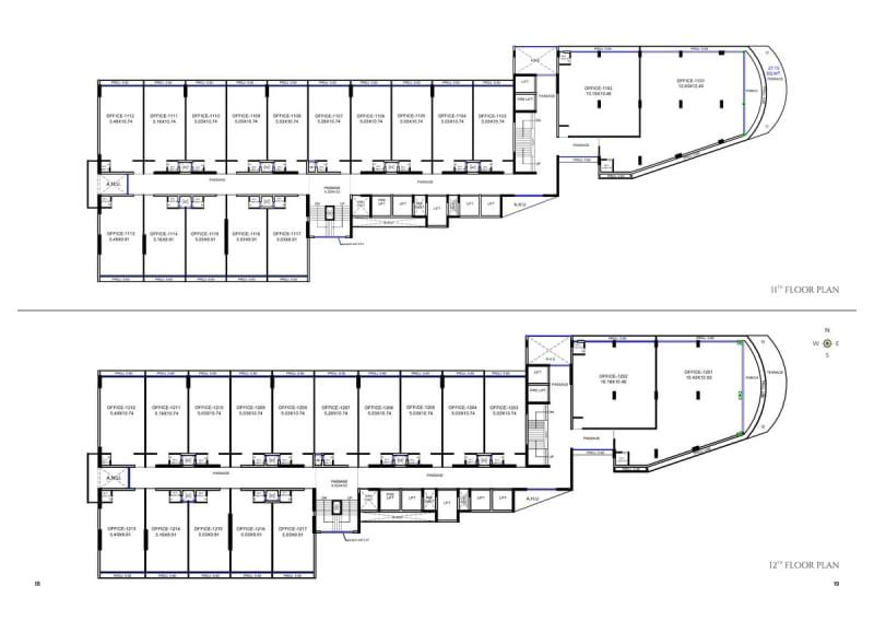
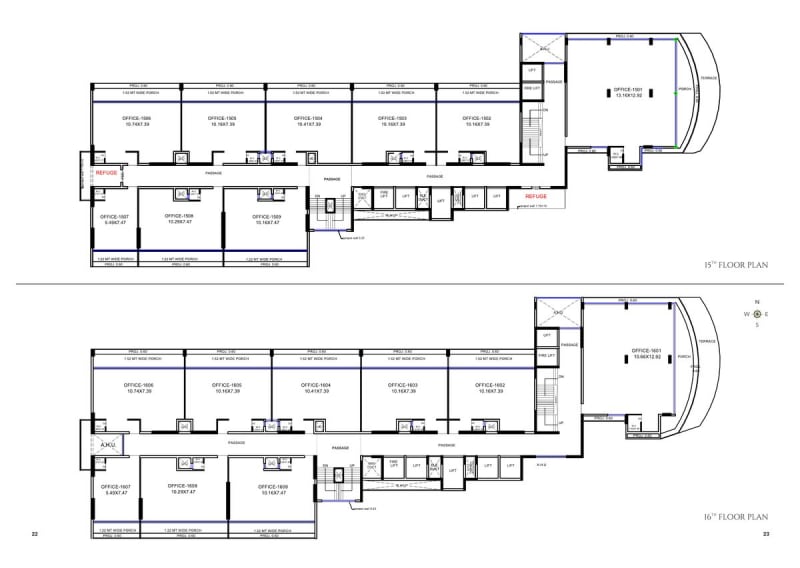
The Summit One is a commercial real estate project developed by Aishwaryam Gardenica Llp, strategically located at R.s.no.276, Near Grand Palace,, 150 Ft. New 2nd Ring Road, Rajkot, Rajkot, 360004. This RERA-registered property (Registration No: PR/GJ/RAJKOT/RAJKOT/Rajkot Municipal Corporation/CAA15912/290925/300932). Showrooms And Offices
The project is professionally designed by Maitri Upendra Modi and engineered by Dilip Shamjibhai Ladani, ensuring quality construction and adherence to all regulatory standards. For more information about this property, interested buyers can contact Aishwaryam Gardenica Llp directly at 9714793590.


















