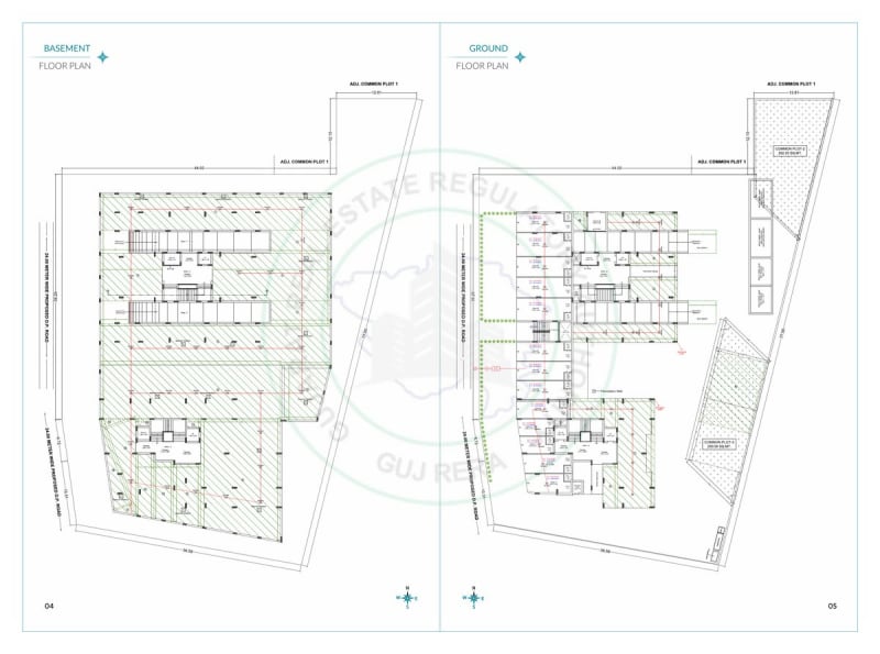
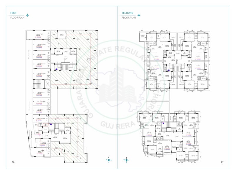
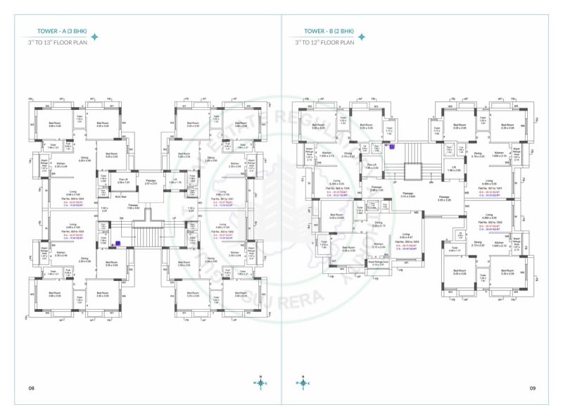
Skyhills is a mixed development real estate project developed by Akash Infra, strategically located at Plot No. 2+3 & Common Plot No. 2+3, Survey No. 461, Punit Nagar 80 Feet Road, , B/h. Ashok Layland Showroom, Nr. Gondal Road, Kangashiyali, Taluka : Lodhika, Dist. : Rajkot, , Rajkot, 360022. This RERA-registered property (Registration No: PR/GJ/RAJKOT/LODHIKA/Rajkot Urban Development Authority/MAA14496/101224/310327). 2 & 3 Bhk Flats And Shops
The project is professionally designed by Parth Jayantilal Patel and engineered by Sanjaykumar Gopalbhai Unjia, ensuring quality construction and adherence to all regulatory standards. For more information about this property, interested buyers can contact Akash Infra directly at 9428283943.












