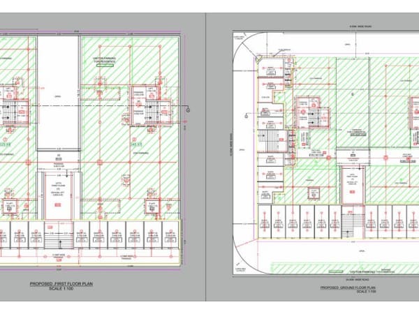
Shree Gokul Prime is a mixed development real estate project developed by Karnavati Developers, strategically located at Gokul Park Mahika 80 Feet Main Road, Near Manda Dungar Bhavnagar Road, Rajkot, 360003. This RERA-registered property (Registration No: PR/GJ/RAJKOT/RAJKOT/Rajkot Urban Development Authority/MAA15520/140725/311230). Shops & Flats
The project is professionally designed by Maitri Upendra Modi and engineered by Priyank Nileshbhai Sankdecha, ensuring quality construction and adherence to all regulatory standards. For more information about this property, interested buyers can contact Karnavati Developers directly at 9099070070.







